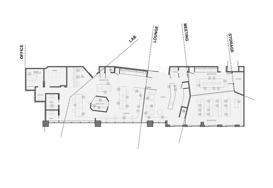
MIT School of Engineering collaborated with Merge Architects to develop MIT Beaver Works, a multi-use research space for students, faculty, and technical professionals in the Tech Square hub near MIT’s campus in Cambridge. Along with a research lab, the space incorporates a café/lounge area, meeting rooms, and a prototyping shop, creating a collaborative environment to engage MIT students, faculty, and researchers.
The entry area – a lush café/lounge with built-in seating, a café bar, and a storage wall wrapped in radiatta pine plywood – functions as the social hub for the lab. Oversized custom-fabricated felt and wood light fixtures create a warm space for exchanging ideas. Research labs and flexible classrooms flank the café area, encouraging collaboration among students, faculty, and research professionals. The research area features custom-fabricated built-in seating, mobile work surfaces, and storage carts, as well as a meeting pod and a cyber-bar running along the perimeter. The classrooms feature rolling furniture and an operable partition with three layout possibilities providing small, medium, and large classroom spaces as needed for a variety of programming. Throughout the space, flexibility allows for multiple programs, from conferences and classes to events and openings, providing space for research while encouraging interdisciplinary cooperation.














