For the last three years our practice has been exploring new forms of learning space with Northeastern University. For the Silicon Valley Campus we sought to develop a plan that was responsive to the University leadership’s core principles. Primary among these was that the new Campus “should connect students to the complex world around them,” and should be an “integrated ecology of learning.”
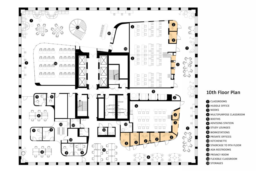
This was interpreted to mean that the Campus should be connected to its site, rooms should be transparent to each other, and the plan outward looking. By “flipping” the diagram of the existing building, classrooms and offices were clustered around the building core and shared spaces moved to the daylit perimeter. The classrooms are bounded by glazed partitions, framed openings and a ring of collaboration pods, booths and benches. These serve a dual purpose. Views out to San Jose ensure that the Campus is firmly connected to place. Conversely, views into the building become a rich overlap of work and teaching in progress. As a result, classrooms are not insular, but one facet of an ecology of spaces, each borrowing from the energy and activity of the other.
At the heart of the design is a belief that one teaching style does not work for all content nor does it work for all students. By providing a range of options from focused to informal learning settings the design seeks to be inclusive of both a broad band of teaching modalities as well as a diverse set of students. This approach is particularly attuned to the large international student community in San Jose. Newly settled in the U.S. the University sought to provide an environment that could serve as a home-base, a place where they would work and hang out, not just arrive for class and then leave. In this project classrooms are conceptualized not as a place set apart, but one facet of a community of learners and learning spaces, each borrowing from the energy and activity of the other.
