MIT Beaver Works AeroAstro is our second collaboration with MIT Beaver Works, an entity developed between MIT Lincoln Laboratory and MIT’s AeroAstro Department. Beaver Works was founded specifically to focus on collaborative projects between the two institutions. It is unique in this way, as it houses a special relationship that encourages an output only possible with this collective mind.
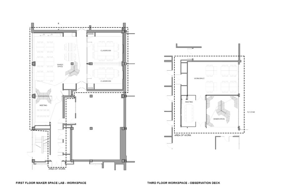
This multi-use research destination is located within MIT’s Building 31, a building used by MIT’s AeroAstro and MechE department to research autonomy, turbo machinery, energy storage, and transportation. Our project defines a series of 3 key locations within this larger structure, creating an institute within the institute. Students, faculty, and technical professionals from MIT and Lincoln Laboratory are able to collaborate in lounge areas, meeting rooms, a Prototyping Shop, and Maker Space Lab designed specifically to excite Beaver Works’ innovative method of research and invention.
Strategic plywood millwork components act as moveable seating and ceiling-scapes that help define the brand of this unique academic environment. The spirited form and hyper flexibility/movability of the custom seating elements allow users to reconfigure and reimagine the formal puzzling of the pieces within the space, and socially choreograph each unique event and opportunity for invention.
With the use of sustainable products such as plywood, steel and bolon flooring, we were able to cultivate a material palette that is both contemporary and environmentally sensitive.
The large glass foldable wall in the main Maker Space area transforms the seminar and classrooms into a large flexible work zone that can accommodate a variety of programs including conferences, events, openings and exhibitions.
The wall graphics throughout the space (developed in-house) utilize and modify historical photographs of both Lincoln Laboratory and MIT AeroAstro, simultaneously celebrating their past while melding them into a cohesive branded identity.









