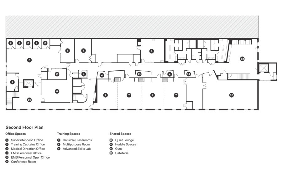
In response to the increasing demand for frontline workers, the City of Boston retained Merge Architects to design a dedicated training facility for its municipal emergency medical service. The Training Facility program includes office space for EMS training personnel, classrooms and simulation rooms, a cafeteria, a rehabilitation gym and locker rooms, as well as a public facing multipurpose room. A single story addition houses a training bay as well as a two-bay active ambulance station that serves the adjacent community. The completed workspace balances the need for durability, medical cleanliness, and vibrant placemaking.
The site for the project was a 60’ deep by 300’ long warehouse owned by the City of Boston. This posed a planning challenge – the program area demanded a double-loaded corridor, but how to make 250 feet of circulation cut off from windows an attractive programmatic amenity? The design team sought to reimagine the double-loaded corridor as a luminous core, healthful, and bright. It is intended to serve as both circulation and a destination in itself. To achieve this a metal mesh ceiling partially conceals a luminous white plenum that diffuses natural sky light from solar tubes down to the floor. Light fixtures driven by photocells ramp up as daylight diminishes, maintaining the effect throughout the day. Translucent huddle rooms are tucked in under a soffit along one edge – the mechanical spine of the building – creating a sectionally active and layered space. Built-in benches and mobile seating in the huddles help further transform the corridor from a place of passage to a setting for informal meetings and impromptu teaching sessions.
A unique feature of EMS pedagogy is that all spaces, not only classrooms, are used as sites for teaching. Small groups might practice CPR technique on the floor of the Cafeteria or an emergency response might be reenacted in the corridor. This posed the second planning challenge of the project: how to balance the need for flexibility with institutional permanence – to allow for varied and unpredictable space use while also providing a comfortable environment with a clear Boston EMS identity. The response included a careful calibration of room dimensions and a focus on “programmatic edges.” Built-in elements – booths and benches, counters, and huddle rooms – border high-impact spaces and project a sense of permanence and care towards the building occupants. This is counterbalanced with mobile, stacking and nesting furniture which plays an equally important role.
The color palette and graphic iconography used in the space are borrowed from the safety-orange striping and blue lettering of the Boston EMS ambulance fleet which are highly recognizable to EMS personnel. The “star of life” symbol (minus the rod of Asclepius) was reimagined as a playful motif and used in combination with the department’s official insignia to enliven unadorned areas of the building and to call out significant entries and circulation nodes.
Emergency Medical Services are a critical arm of the constellation of public safety workers in Boston. However, compared to Fire and Police, EMS is an underrecognized group. As frontline workers, they face immense pressure and take significant risks every day. This is reflected in both mental and physical well-being. The Training Facility design sought to go beyond the everyday programmatic needs of Boston EMS. It sought to use color and light to achieve twin objectives: embed client identity in the design, and create a light-filled space for the health and well-being of EMS personnel.



















