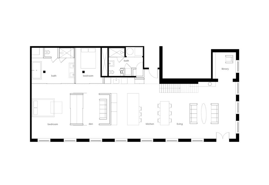
Fort Point Loft is a 2,000SF loft renovation featuring an open floor plan connecting primary living spaces with a floating den separating the kitchen from the open master bedroom. The dark side of the loft is lined with private programs and storage hidden behind a flexible wall system of aluminum and glass sliding panels. Aluminum frames and translucent finishes on the panels allow borrowed light to penetrate while providing layers of opacity and translucency for programs of various levels of privacy.
Fort Point Loft
Boston, MA










