Northeastern University’s Curry Student Center, originally built by a student-led referendum in 1964, is more than just a building – it brings the student community together with an impressive array of cultural and social programs with the mission of celebrating diversity and student life.
One of the main challenges that Northeastern University faced with their most recent renovation of the Curry Student Center was a lack of cohesion between the multiple spaces as well as the obscurity of programs located on upper atrium floors. We aimed to remedy this by emphasizing openness and transparency, while stitching the discrete programs together with vibrant color palettes that complement the existing monochromatic modernist building interior. The simple introduction of color creates a framework for future renovations and additions to the building, ensuring that the Curry Student Center will continue to be a welcoming space to the diverse and evolving student body.
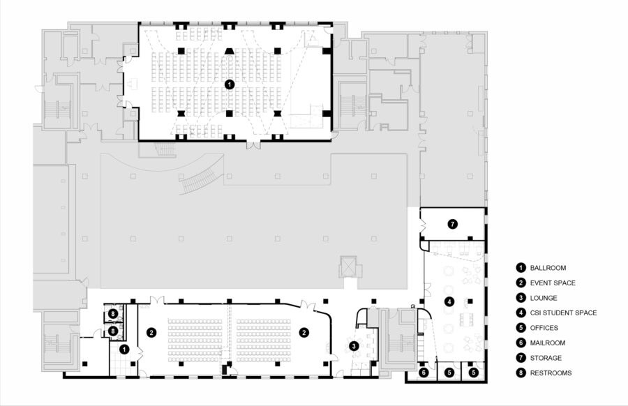
In this series of renovations, we updated various flexible event spaces, including the Center for Student Involvement, student lounge, and the Curry Ballroom – one of the main spaces on campus for hosting conferences, performances, or special events.
In the Ballroom, we deployed an immersive color and material palette to serve as a complementary background to the large variety of events that could occur in the space. The design sought to accentuate the scale and height of the space by drawing the eye upward to a series of undulating sculptural wood “fan vaults” that create visual rhythm, enhance acoustics, and direct sightlines toward the central stage. The result is a space that feels both intimate and celebratory, a dynamic spatial vision for the landmark Northeastern University venue.












