It should not perhaps have been surprising that a profession tasked with operating in dark, confined, and generally uncomfortable spaces desired a space precisely opposite within which to do so. The orthodontist is, after all, used to asking “open wide”. Such was the challenge in overhauling a dark, confined, and unwelcoming storefront space for Greater Boston Orthodontics.
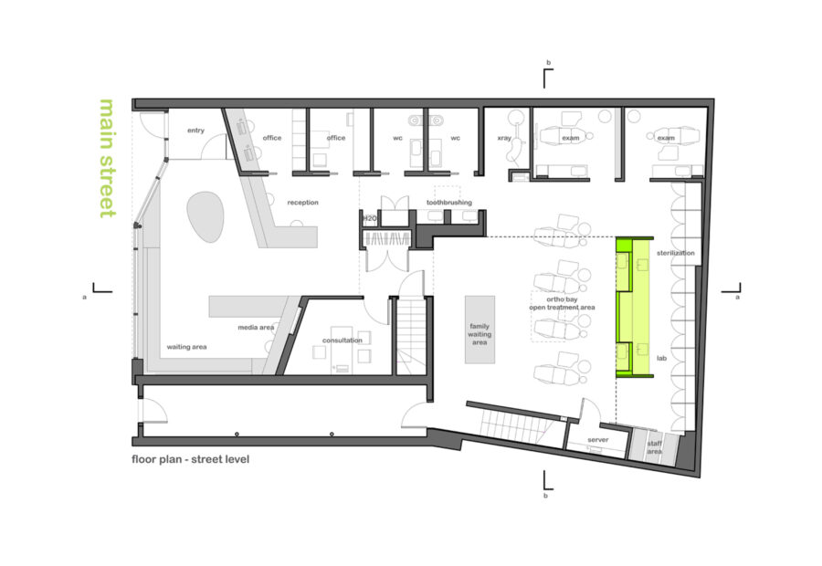
Unable to expand beyond the envelope of the century-old commercial space, existing interior walls were removed to create an open-plan reception and treatment area flanked by semi-private offices, exam rooms, and a staff break area.
The impression of openness is most dramatically achieved, however, not by opening wider but by opening up. A double-height treatment area is anchored by a custom-crafted translucent wall that slopes and curves upwards to a pair of skylights in the ceiling above. Like all walls, the surface divides spaces – in this case the sterile labs from the orthodontics bay. Unlike most walls however, the assembly of CNC-cut ribs and polycarbonate panels also channels light into the otherwise dark operating area below.
The street-facing waiting and reception spaces – where clarity and comfort are key in presaging the procedures beyond – feature felt built-in benches, custom constructed lighting pendants of the same material, and a digital media bar to engage (read distract) patients. Where light and space remain necessarily limited, bright green custom wall graphics do the job of friendly wayfinding.
These sectional, constructional, and material strategies combine to both soften and shed new light upon the patient experience.












