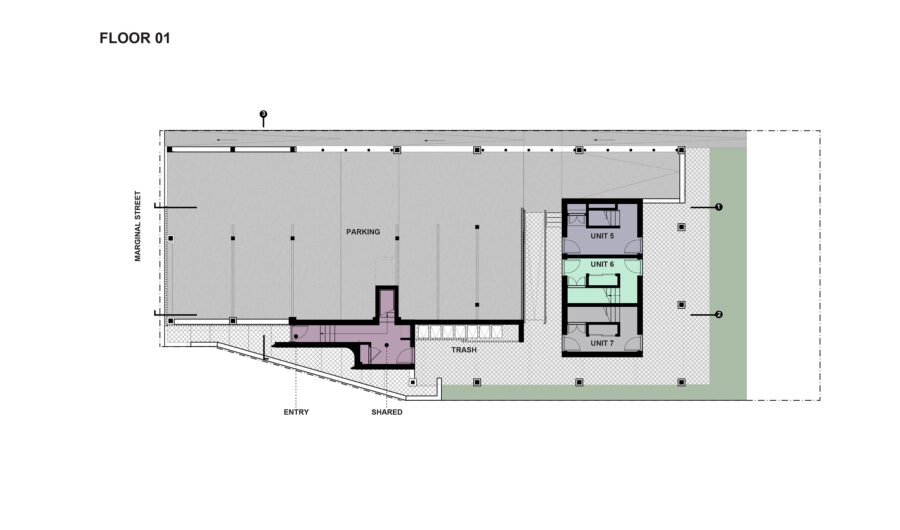
The third of three (and counting) Merge housing projects on East Boston’s Marginal Street, this building is slightly separated from its I and II predecessors and tightly flanked by existing triple decker residential types. If the building’s materiality nods to the previous Marginal Street projects, its site constraints prompt an assembly of three distinct residential typologies all its own.
Two duplex units line the street and benefit from gracious south-facing balconies overlooking Boston harbor and skyline. Halfway into the site, two flats are oriented across the width of the building. Extending beyond the front units, each of these obtains slot water views from small balconies on the building’s scalloped eastern face. These four units hover over grade-level parking that responds to the site’s FEMA flood requirements. The sloping nature of the site allows the rearmost set of units – three, three-story townhomes – to sit on grade. Each benefits not only from balconies overlooking a private backyard, but water views from a rooftop deck.
The final form of the building is determined by this complex composition of units along with contextual callouts and innate craft conditions of its cladding. Alternating angles on the front floor plates accentuate the tripartite height, alluding to and aligning with the levels of adjacent triple deckers. While cedar balcony cutouts and ground level screens also reference these vernacular neighbors, inexpensive corrugated metal wraps the majority of the building. Vertically oriented, the pliable steel panels allow, indeed even prompted, the curving of corners. As a result the stepped eastern elevation becomes a series of sail-like scoops that smooth viewsheds and shape access to rear units.
In its palette and profile, the building poetically unifies disparate elements of the site: the steel of industrial shipyard structures to the west, the clapboard texture of surrounding triple deckers, the angular lines of Marginal Street Housing I and II, and the curvatures of barges and sailboats that step away into the harbor.






















