The first of two Merge housing projects referred to by their location on Condor Street, this project might be more aptly described as an albatross: a problem of development pressures and site demands solved through subtle formal and material strategies.
While the building benefits from a corner lot with views across Chelsea Creek, its site also slopes dramatically across its length and is bordered by low rowhomes. How then might the building navigate the topography, capture views and allowable square footage, while appearing at home amongst the surroundings?
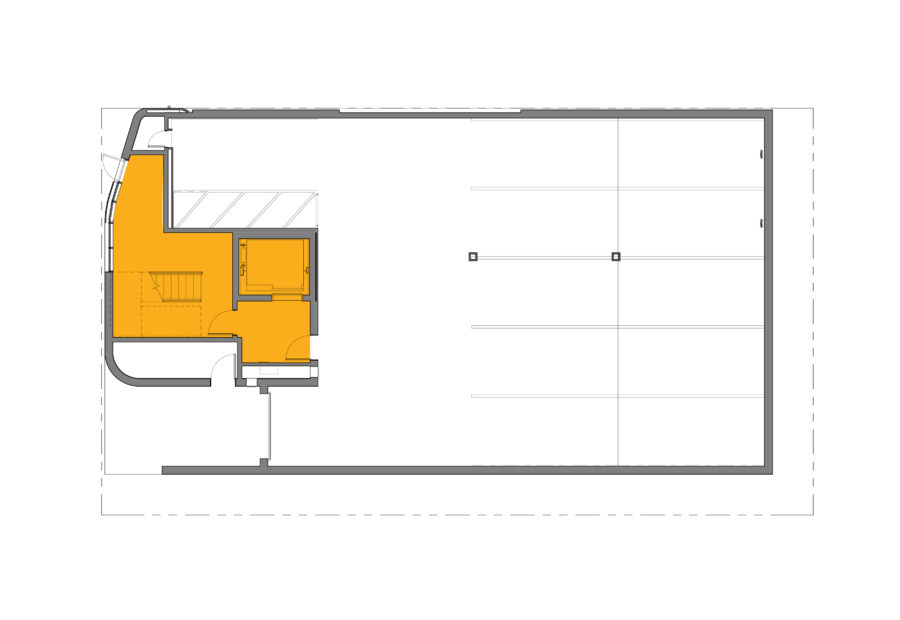
The building begins by giving over its partially submerged ground level – with the exception of a corner entry lobby – to parking. The levels above borrow the blocky residential typology of the neighbors, extending upwards an additional story to maximize the amount of residential units. Horizontal bands between swaths of corrugated metal cladding break up this height by aligning with neighboring roofs. The metal’s pliability affords further articulation in the form of scooped subtractions that dissolve exterior corners to relate to the shorter neighbors. These undulations in the facade also accommodate balconies from which occupants can observe ships passing through ports along the waterway beyond. Inversely, those aboard these barges might feel a kinship with the building’s seafaring geometry and maritime materiality. Alas, the building remains decidedly docked; marked by regions of wood siding and anchored by a base of board-form concrete in contemporary allusions to the clapboards and masonry water tables of the surrounding structures.
Existing between the scale and substance of residential block and shipping vessel, this potential albatross instead carves out a congenial position within its context.



















