Located in the heart of North Adams, MA, Northern Berkshire Community Coalition’s (nbCC) new Community Center project is well sited to serve the 38,000+ residents and community members of northern Berkshire County. Much of nbCC’s work is centered around bringing together and connecting the community, a mission that highlights the importance of providing a safe, welcoming, and accessible physical space for community members to convene. The scope of work for the new Community Center includes the renovation of an 18,000 square foot existing structure and outdoor space at 192 State Street. In addition to serving the public space needs of the community, the building will also serve as a new workspace for nbCC staff, and house nbCC’s Bike Collective.
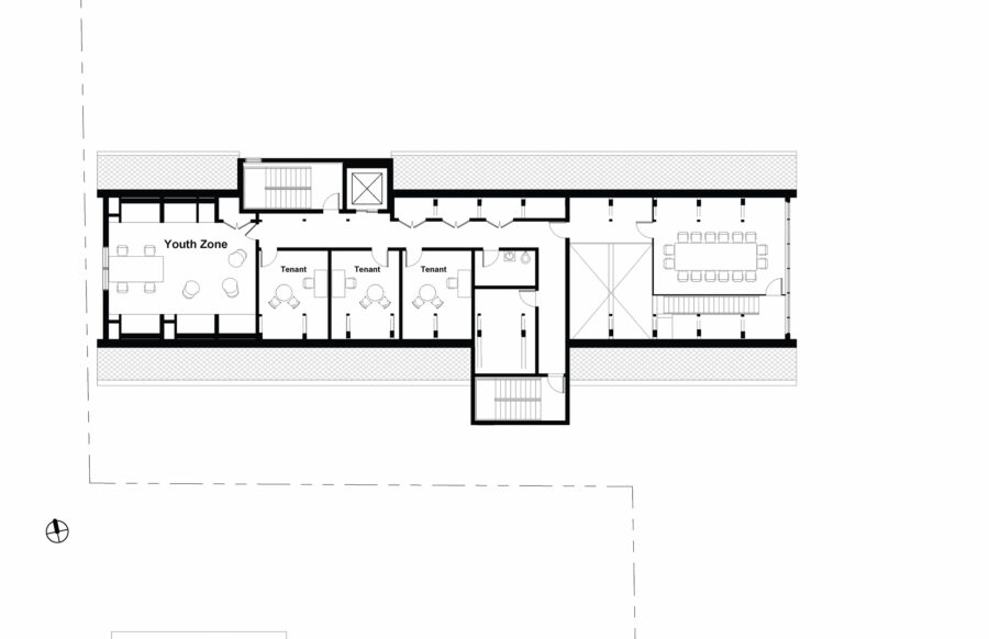
Upon entering the ground floor, visitors are welcomed with a reception area and open central stair. A large community gathering space, able to accommodate 200+ for meetings, forums, and events, opens up to an outdoor deck that overlooks the backyard and captures mountain views to the east. The ground floor also includes multi-use space, a commercial kitchen, restrooms, and back of house spaces. On the second floor, the nbCC staff area balances open workspace with privacy and flexibility. Classrooms, meeting rooms, and a playroom provide community programming on the west end, while the kitchenette and lounge towards the middle bridge between the staff area and more public program areas. The nbCC staff space extends up to the third floor with a double height space and a conference room. The third floor also includes a ‘youth zone’ on the west end, three tenant offices, and much needed storage space.
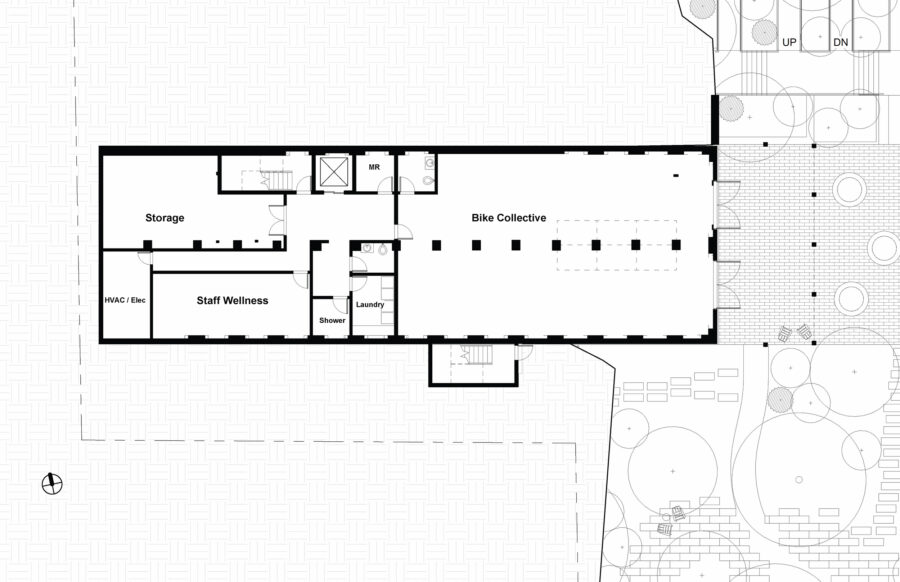
The garden level is almost fully below grade at the west end of the building, but given the topography of the site is able to open out directly onto the backyard with two sets of double doors. NbCC’s Bike Collective – which works to make biking more accessible to those who may not have consistent transportation, or who have bikes needing repair – will find its new home at this lowest level. The Bike Collective has the opportunity to open up onto covered outdoor patio space, making for easy access to outdoor bike repair and community engagement. The west end will be programmed for staff wellness, restrooms, showers, laundry, storage, and building services.
The outdoor space has a gentle slope and a mix of sun and shade provided by the mature tree canopy. This available open space has great potential to be reimagined to meet nbCC’s goals, which include supporting the work of nbCC and partner organizations, providing accessible outdoor space for individuals, small groups, and larger gatherings, and providing a productive landscape that supports wildlife, provides access to nature, and promotes educational opportunities.


















