This restaurant, café, and bar is informed by its prominent location in Boston’s Back Bay and its function as a live music venue.
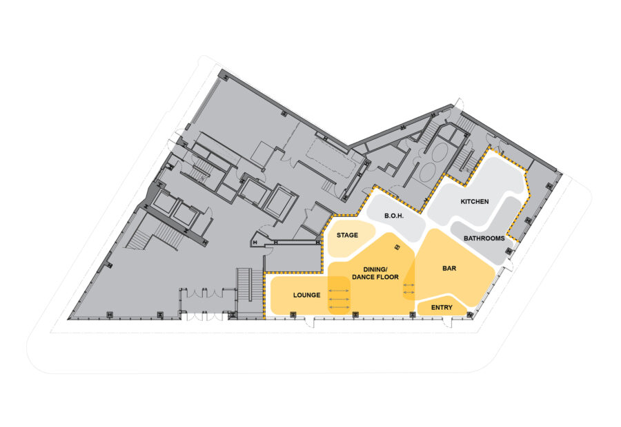
The existing space’s irregular shape and level changes created a fragmented condition within which to intervene. On the one hand, the design utilizes this fragmentation to spatially and acoustically separate programs within the space. On the other, it formally unifies these functions into a perceived whole. It does so in a cheeky – if not entirely slapstick – manner through the articulation of a continuous ceiling plane. This surface, like that of a snare drum, appears impacted in three locations. The resultant fissures reinforce the space’s fragmentation even as they create a cohesive language and location for lighting and mechanical fixtures. The impact points, in their slightly asynchronous correspondence with the established rhythm of the floor levels below imply a unique back (Bay) beat.
The ceiling plane turns down at the rear wall to become a bar, sponsor seating, enclose kitchen and service areas, and serve as a backdrop for the stage. Here, the faceted geometries of the ceiling are reprised to amplify and reflect sound throughout the space. These impacts aside, the public space is left open to accommodate the varying functions of the venue. Free-floating tables, chairs, and benches are easily arranged into dining and social settings or stacked and stowed to accommodate larger music audiences. So too does the bar transform from a frenetic dispensary of alcoholic libations at night to a comfortable coffee counter during the day.
In its oscillation between fragmentation and cohesion, Back Bay Bests eases its way into the rhythm of its neighborhood.





